空氣質量監控系統 地下停車場CO濃度監控系統簡介
一氧化碳是無色,無臭,無味氣體,吸入對人體有大的傷害。它會結合血紅蛋白生成碳氧血紅蛋白導致人體缺氧。人體最常見的一氧化碳中毒癥狀,如頭痛、惡心、嘔吐、頭暈、疲勞和虛弱的感覺,長期在一氧化碳氣體中可能嚴重損害心臟和中樞神經系統,對人體會產生后遺癥。因此,地下停車場應配有送、排風系統,用新鮮空氣進行置換。
巨川電氣按照相關技術標準研發了地下停車場空氣質量監控系統-CO濃度監控系統,該系統是集工業計算機技術、通訊、抗電磁干擾、數字傳感技術及工業現場總線技術于一體的智能化系統,可對地下停車場一氧化碳濃度進行24小時實時自動巡檢,對一氧化碳濃度超過標準的區域給出報警提示,并聯動開啟機械送風系統,控制一氧化碳濃度在安全范圍內。
1、系統組成
地下室CO濃度監控系統由下列設備組成:
WSI(CO濃度監控器主機以下簡稱監控器);
WSI 空氣質量控制器 (CO濃度控制器以下簡稱控制器);
WSI(CO濃度探測器以下簡稱探測器);
WSI 溫濕度傳感器(以下簡稱傳感器);
貫徹相關國家標準
中華人民共和國國家標準GB50016 -2014《建筑設計防火規范》;
中華人民共和國國家標準GB51251-2017《建筑防煙排煙系統技術規范》;
中華人民共和國國家標準GB/T50378《綠色建筑評價標準》;
中華人民共和國行業標準JGJ/T229-2010《民用建筑綠色設計規范》;
地方標準DGJ32J173-2014《江蘇省綠色建筑設計標準》;
標準摘要
中華人民共和國國家標準GB/T50378《綠色建筑評價標準》;
8.2.13地下車庫設置與排風聯動的一氧化碳濃度監測裝置;
中華人民共和國行業標準JGJ/T229-2010《民用建筑綠色設計規范》;
9.5.5設置機械通風的汽車庫,宜設置一氧化碳檢測和控制裝置控制通風系統運行;
地方標準DGJ32J173-2014《江蘇省綠色建筑設計標準》;
8.5.3設有機械通風的地下車庫應對CO濃度進行實時監測和控制,濃度探測器應置于通風良好的人群活動區域;
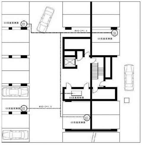
CO濃度監控系統是由 空氣質量控制器、一氧化碳CO濃度控制器、一氧化碳CO濃度探測器組成的。圖 1.1為系統示意圖

空氣質量控制器產品參數:
- 技術參數
監測對象:一氧化碳CO探測器
工作電壓:AC220V±15%/50Hz
負載: ≤ 60個探測器
配接探測器:RXPF – CO
功耗:≤ 10W(不含探測器)
通訊方式:POWERBUS二總線
傳輸距離:≤1000m(2×1.5mm2)
顯示方式:彩屏顯示
報警方式:聲光報警
安裝方式:壁掛式、導軌式
技術參數
監測對象:地下室一氧化碳濃度
工作電壓:DC24V
配接控制器:CO濃度控制器
功耗:≤0.5W
通訊方式:POWERBUS二總線
傳輸距離:≤1000m(2×1.5mm2)
顯示方式:數碼管顯示
報警方式:聲光報警
空氣質量控制器(CO濃度監控器)的安裝布線
1. CO濃度監控器與 CO濃度控制器布線
CO濃度監控器可出兩個回路,每個回路最多可帶載 128只 CO濃度控制器,每個控制器可帶載 60個 CO濃度探測器點位。
2) CO濃度監控器的安裝:CO濃度監控器(主機)設置在消防控制室,主顯示屏距地面高 1.3-1.5m,距門軸處大于 1.5m。
3) CO濃度監控器與 CO濃度控制器之間使用 T型或鏈式連接。
4) CO濃度監控器與 CO濃度控制器之間,CO濃度控制器與 CO濃度控制器之間使用 NH-RVS-2×1.5mm2雙絞線。
2. CO濃度探測器、控制器的安裝位置
1) CO濃度探測器安裝在地下車庫空氣流通的位置,每 300~400平米設置 1個檢測點位,探測器之間設置間距≤20m,CO濃度探測器設置高度為底
邊距離地面高 1.5m。
2)控制器安裝在排(煙)風機控制箱內(推薦),也可單獨設置在控制箱內(由廠家配套,需單獨采購)。
3.連線方式及線纜的型號
1)探測器與控制器、探測器與探測器之間使用二總線方式連接,電源線與
信號線共用,線型為 NH-RVS-2×1.5mm2,連接方式為“T”連接或鏈式連接。
2) CO濃度控制器與 CO濃度監控器(主機)之間使用 CAN總線通訊,線型為 NH-RVS-2×1.5mm2,連接方式為“T”連接或鏈式連接。
3) CO濃度控制器與 CO濃度監控器(主機)供電電源為 AC220V,電源線線型為 NH BV-3×2.5㎜2。
4.預埋管及預埋盒
1) JDGφ20套接緊定式鍍鋅導管(推薦)φ16.φ20.φ25.φ32.φ40。
2) KBG.國標扣壓式線管。
3) 86型預埋盒。
CO濃度探測器的安裝
1.?? CO濃度探測器平面安裝圖

圖 3.1
2. CO濃度探測器立面安裝圖

圖 3.2
3.安裝步驟說明
1)先將五金支架固定在 86盒上
2)通過撥碼開關進行編碼
3)接線,并將接好線的 CO濃度探測器固定到五金支架上
4. CO濃度探測器安裝實樣圖
圖 3.4.1 CO濃度探測器安裝效果
5. CO探測器接線方式
1) CO濃度探測器與 CO濃度探測器、CO濃度探測器與 CO濃度控制器的連線允許使用“T”式接線法或鏈式連接。
2) CO濃度探測器與 CO濃度探測器、CO濃度探測器與 CO濃度控制器的連線的線型為 NH-RVS-2×1.5mm2。
3) CO濃度探測器與 CO濃度探測器、CO濃度探測器與 CO濃度控制器的連線同一極性應使用相同顏色“+”極使用紅色、“-”極使用藍色。
四、CO濃度控制器的安裝
1. CO濃度控制器的安裝位置
1)安裝在風機配電箱內。
圖? 4.1.1

2)安裝在獨立的控制箱內(控制箱需另購)
2. CO濃度控制器的外形尺寸:130mm(長)X 95mm(寬)X 58mm(深)
CO濃度控制器的使用環境為-10℃~+70℃、超出范圍時應采用保溫和通風措施。