系統介紹 System Introduction
消防應急疏散余壓監控系統又命名為壓差監控系統,由浙江巨川電氣科技有限公司開發設計,為了確保疏散通道的余壓在火災發生時能夠處于有效的受控狀態,既能阻止煙氣的擴散,又能使逃生者比較輕松打開防火門逃生,保護人員安全疏散,沃思智能嚴格按照國家標準GB1251-2017《建筑設計防火規范》和《建筑防排煙系統技術規范》,研發J-BUS余壓監控系統。該系統是集工業計算機技術、通訊、抗電磁干擾、數字傳感技術及工業現場總線控制技術于一體的智能化系統,可以對疏散通道余壓的工作狀態進行24小時實時自動巡檢,對處于非正常狀態的余壓給出報警提示。在發生火情時,該系統可以自動調控機械加壓送風系統的送風量,也可在消控中心對其進行遠程控制。采用高精度美國進口數字傳感器芯片(精 度:±1.0%F.S),人機友好界面,操作簡單,強大的兼容性,完美對接第三方系統平臺。
系統特點 System features
1. 高標準:按照國家標準研發設計
2.高精度:美國進口數字傳感器芯片
3.多接口:風閥執行器2種接口:開關量,模擬量,區別市場大部分產品只有1個接口
4. 更方便:無線遙控設置余壓傳感器地址碼
5. 多點位:主機可帶1040點位
6.兼容性強:完美對接第三方平臺
7.收款利器:內置收款程序,讓項目收款不再是問題
系統的必要性 Need for systems
機械加壓送風系統中為什么要設計旁通閥控制加壓送風的正壓值?火災發生后,又能起到什么作用呢?
眾所周知,發生火災時,絕大多數人員死亡不是因為火,而是有毒煙氣,隨著可燃物的燃燒產生的大量高溫煙氣,煙氣中含有大量未完全燃燒的有毒、有害物質、通過人的呼吸道吸入體內,對人員的生命安全造成嚴重威脅。
為了有效抑制火勢蔓延、阻止煙氣擴散。正壓送風系統的送風口出風可使樓梯間及消防前室形成正壓,阻擋有害煙氣進入人的疏散通道。但是當正壓送風系統送風量及送風時間不可控時,正常的逃生路線有可能因為前室正壓過大,防火門無法開啟而造成的嚴重后果。鑒于上述考慮,公安部四川消防科學研究所結合國際經驗提出余壓值的數據。J-BUS余壓監控系統可以通過監控前室余壓值,而控制旁通閥的開閉,將機械加壓送風系統的余壓值有效控制在國標要求的合理范圍內—-防煙樓梯間40-50Pa,前室、合用前室、消防電梯間前室、封閉避難層(間)為25-30Pa。這樣既阻止了有害煙氣的進入,也確保了防火門在需要人員疏散時可以正常開閉。
國家標準 National standards
中華人民共和國國家標準 GB50016-2014《建筑設計防火規范》
中華人民共和國國家標準 GB50045-95《高層民用建筑設計防火規范》
中華人民共和國行業標準 JGJ-16-2008《民用建筑電氣設計規范》
中華人民共和國國家標準 GB1251-2017《建筑防煙排煙系統技術規范》
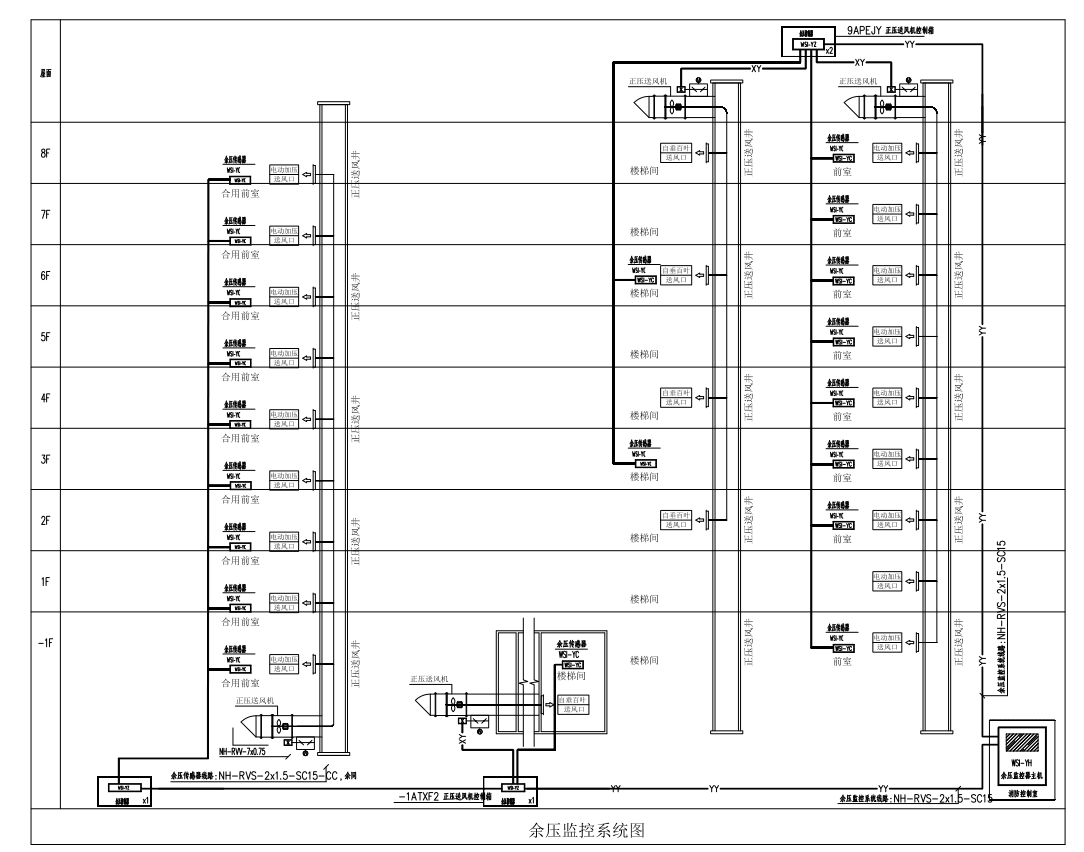
配電箱系統圖 Distribution box system diagram

系統結構圖 System structure diagram

圖例材料表 List of legend materials

設計說明 Design description
1.根據中華人民共和國國家標準在GB51251-2017《建筑防煙排煙系統技術規范》 GB50016-2014《建筑設計防火規范》的規定,設置疏散通道余壓監控系統。
2.對于前室、合用前室,由于余壓控制區域為多個上下不貫通的空間(每層前室),需要在每層前室設WSI余壓傳感器,余壓傳感器的探測點一側于前室,另一側設于走道,余壓設定值為25-30Pa,當系統控制區域超壓時,WSI余壓傳感器發出報警信息,余壓控制器聯動控制泄壓閥執行器,根據實際余壓值與設定值的差異調節泄壓閥,以保證前室正壓設定值。
3.對于樓梯間,由于余壓控制區域為一個空間且上下貫通,WSI余壓傳感器僅在整個建筑樓梯間高度1/3處安裝一只,余壓傳感器探測點一側設于樓梯間,另一側設于走道,余壓設定值為40-50Pa,當系統控制區域內超壓時,WSI余壓傳感器發出報警信息,余壓控制器聯動控制泄壓閥執行器,根據實際余壓值與設定值的差異調節泄壓閥,以保證前室正壓設定值。
4.WSI余壓控制器接到超壓報警后,應以PID控制方式控制泄壓閥執行器來連續調節電動泄壓閥的開啟角度進行泄壓,調節余壓在安全范圍內;WSI-YZ余壓控制器應能顯示與其連接的WSI余壓傳感器監測區域的余壓,超過規范規定值時,應能報警。
5.WSI余壓控制器自帶總線隔離器,并采用35mm導軌式安裝,由配電箱(柜)成套廠家安裝于正壓送風機控制配電箱(柜)內。
6.WSI余壓傳感器與WSI余壓控制器之間使用J-BUS功率通信二總線,J-BUS通信總線(自帶DC24V電源);RVS-2*1.5mm-SC15.
7.系統的施工按照批準的工程設計文件和施工技術方案進行,不得隨意變更。如確需變更設計時,應由設計單位負責更改并經審圖機構審核批準。
系統安裝示意圖 System installation schematic (有原圖,上面的文字需要修改)
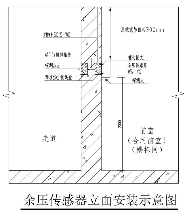
余壓傳感器立面安裝示意圖 Installation of Surplus Pressure Sensor Facade

1.墻壁86暗盒預留內徑不小于15mm的鍍鋅鋼管,走氣管及導線(氣管8*5.5mm及2*1.5mm的屏蔽),接好線及氣管。把余壓探測器安裝好即可。
2.安裝位置:在距離吊頂20-30cm左右的位置安裝,以美觀方便施工為原則。
泄壓閥執行器安裝示意圖 Installation of relief valve actuator
產品組成 Product composition
余壓控制器? Residual pressure controller

參數 Parameters
1工作電源:220V,功耗 < 48W
2環境條件:環境溫度:0℃~+40℃,存儲溫度:-40℃~+75℃,相對濕度:5%~95%,無凝露
3.報警設定值:25Pa~100pa,步長1Pa連續可調,動作誤差<±5%
4.工作方式:220V
5.外形尺寸:160*95*56mm
6.安裝方式:標準35mm導軌安裝
7.泄壓閥接口:開關量,模擬量兩種接口,可以持續調節泄壓閥的開啟角度
功能特點 Functional characteristics
1.具備地址編碼功能,讀取監控余壓傳感器狀態,聯動控制泄壓調節閥。
2.可帶32臺余壓傳感器。
3.可查詢本回路所有余壓傳感器數據、工作狀態等信息;
4. 同時帶開關量,模擬量兩種泄壓閥接口,可以持續調節泄壓閥的開啟角度
接線圖 Wiring
安裝與調試 Installation and commissioning
安裝 Installation
1 控制器采用導軌安裝方式。
2將控制器從包裝箱內取出,進行外觀檢查,看看控制器內的禁固件是否有松動現象,各接插件的連接是否可靠。附件是否完整。
3按照說明書要求進行安裝、接線,檢查接線正確無誤后,方可通電工作。
4檢測安裝、接線無誤后傳感器通電,LED運行指示燈常亮,液晶顯示正常界面。
余壓傳感器 Residual pressure sensor

參數 Parameters
1.測量范圍: 0~250 pa
2.精 度:±1.0%F.S
3.工作電源:24Vdc±2.4V,功耗 < 0.2W
4.環境條件:使用溫度:-10~60℃
5.存儲溫度:-20℃~85℃,相對濕度:5%~95%,無凝露
6.報警設定值:25Pa~100pa,步長1Pa連續可調,動作誤差<±5%
7.工作方式:DC24v二總線供電加通信
8.測量介質:空氣和非腐蝕性氣體
9.防護等級:IP30
10.外形尺寸:86mm*86mm*15mm
11.顯 示: LCD液晶屏
功能特點 Functional characteristics
1.采用美國進口長壽面、高精度、小量程(-100pa-100pa)數字傳感器芯片,具有溫度補償合理、線性度高等特點。
2.通過無線遙控設置余壓傳感器地址碼,簡便快捷;地址碼可查詢顯示,調試維護更方便。
接線圖 Wiring
安裝與調試 Installation and commissioning
1 傳感器采用暗裝安裝方式。
2將傳感器從包裝箱內取出,進行外觀檢查,看看傳感器內的禁固件是否有松動現象,各接插件的連接是否可靠,附件是否完整。
3按照說明書要求進行安裝、接線,檢查接線正確無誤后,方可通電工作。
4 檢測安裝、接線無誤后傳感器通電,LED運行指示燈常亮,液晶顯示正常界面。
5. 無線遙控器操作,設置地址碼.
余壓監控器(主機) Residual pressure monitor (mainframe)

參數 Parameters
工作電源:AC220V,功耗 < 2VA
環境條件:環境溫度:0℃~+40℃
存儲溫度:-40℃~+75℃
相對濕度:5%~95%,無凝露
報警聲音:探測器前方1m處,大于70dB,小于115dB
防護等級:IP30
工作方式:獨立式
外形尺寸:400mm*350mm*125mm
顯 示:7寸人機交互觸摸屏
點 位: 256個余壓控制器,1040個余壓傳感器
注意事項 Notes
報警發生時,可先做“消音”處理,根據顯示屏的內容,判斷故障類型,再對壓差進行隱患排除,隱患排除以后進行復位操作,使恢復正常工作狀態。
每次故障處理后,應對發生故障的時間、類型及處理方式等內容進行記錄,以便日后可查詢(本余壓監控系統可以自動記錄)。
未經本公司同意,任何人員不得拆開余壓監控系統進行維修。
余壓監控系統應在其主要技術特性下工作,監控設備屬于精密儀器儀表類,應避免沖擊、碰撞,嚴禁雨水淋濕。
使用和操作 Use and operation
余壓監控系統投運后為長期連續工作,運行中可根據需要隨時檢查各種運行數據。
1 消音
按“消音”鍵用以消除報警聲響。
2 復位
按“復位”鍵可使監控設備恢復常態,但在開關轉換失敗報警后,故障尚未消除時按“復位”鍵無效。
3 自檢
按“自檢”鍵,可對監控設備內部電路的電氣完好性進行檢查。此時監控設備面板上所有指示燈應點亮,同時蜂鳴器發出響聲。